聯系我們
- 聯系人:郭經理
- 傳真:010-69552656
- 電話:400-0346-119
- 電話:010-57113119
- 郵箱:506665119@qq.com
- 地址:北京通州區新華北路117號
皓安HM3012一體式常閉防火門監控模塊
時間:2019-04-03 15:12:22 品牌:
![[!--oldtitle--]](/d/file/fanghuomen/2019-04-03/2db8e414f132ac7833ee3560e562fc05.jpg)
一、HM3012一體式常閉防火門監控模塊產品概述
HM3012一體式常閉防火門監控模塊是一種總線制控制接口設備,符合--標準GB29364-2012《防火門監控器》要求。該門磁開關用于監視常閉防火門開啟、關閉狀態,通過總線通訊線把信息反饋至防火門監控器。
二、HM3012一體式常閉防火門監控模塊產品特點
1、二總線,無極性連接。
2、監視常閉防火門狀態。
3、安裝方便,布線簡單。
三、HM3012一體式常閉防火門監控模塊技術參數
四、HM3012一體式常閉防火門監控模塊結構特征
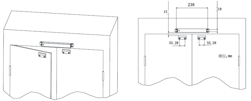
1.模塊的外形尺寸及安裝尺寸如下圖所示:

HM3012外形尺寸及安裝尺寸意圖
2.接線端子說明:
B+、B-:總線輸入接口,用于模塊與控制器通信和參數設置,無極性。 五、HM3012一體式常閉防火門監控模塊安裝與布線
警告:安裝設備之前,請切斷回路的電源。
1、安裝前應首先檢查外殼是否完好無損,標識是否齊全。
2、門磁開關采用上門框安裝,安裝方式如下圖所示式:

3、接線方式如下圖所示,兩根白色的線直接接入防火門監控器上的通訊二總線。

HM3012接線示意圖
4、布線要求:
總線(BUS)采用NH-RVS-2×1.5mm2線,穿金屬管(線槽)或阻燃PVC管敷設。







